Kabinenwaschanlage für Kugellagerteile

    Home   Referenzen   Kontakt   Impressum   Anfahrtsweg   AGB   Datenschutz    
Kabinenwaschmaschinen

   1. Kabinenwaschanlage für Metallteile
   2. Kabinenwaschanlage für Kugellagerteile
   3. Kabinenwaschanlage für Metallteile in Körben
   4. Kabinenwaschanlage Kleinteile in Körben
   5. Kabinenwaschanlage für Schwenklager


Durchlaufwaschmaschinen

   1. Banddurchlaufwäscher für Metallteile
   2. Durchlaufwäscher für Zahnwellen
   3. Durchlaufwäscher für Gelenkbauteile
   4. Durchlaufwäscher für Radnabenbauteile nach        Gleitschleif-Entgraten
   5. Durchlaufwäscher für Radnabenbauteile nach        dem Räumen
   6. Durchlaufwäscher für Gelenkgehäuse der        mechanischen Bearbeitung
   7. Durchlaufwäscher für Gelenkwellenrohre
   8. Durchlaufwäscher für Gelenkwellenrohre vor        dem Lackieren
   9. Takt-Durchlaufwäscher für Metallteile
 10. Durchlaufwäscher für Rahmenlängsträger von        LKW
 11. Durchlaufwaschanlage für Carrier


Tauchwaschmaschinen

   1. Tauchwaschmaschinen für Metallteile


Behälterwaschmaschinen

   1. Behälterwaschanlagen für Edelstahlcontainer        mit Rundverkettung
   2. Behälterwaschanlage für Edelstahlcontainer
   3. Behälterwaschanlage für Edelstahlcontainer mit        Rundverkettung im Ex-Bereich


Kleinteilewäscher

   1. Kleinteilewäscher


Endgratanlagen

   1. Kabinen - Wasch-Endgratanlage für AGW-       Module
   2. Takt – Durchlauf- Wasch-Endgratanlage für        Ölpumpengehäuse
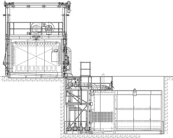
Kabinenwaschanlage für Kugellagerteile

Kabinenwaschanlage für Kugellagerteile
Kabinenwaschanlage für Kugellagerteile
Spezifikation:


Reinigungsgut:
Verschmutzung:
Chargengröße:
Chargengewicht:
Durchsatz:
Beladung:
Reinigungsmedien:
Reinigungsverfahren:
Badpflege:
Beheizung:
Aufstellfläche:



Großkugellagerteile
Zunder, Härtesalz
Ø x H = 3300 x 1500 mm max.
10 Tonnen
4 Chargen/h
mit Manipulator von vorn
VE-Wasser
Flutwaschen, Spritzwaschen, Spritzspülen 1, Spritzspülen 2, Umlufttrocknen
Siebfiltration
Elektrisch
L x B x H = 12000 x 4600 x 6500 mm auf zwei Ebenen