Behälterwaschanlagen für Edelstahlcontainer

    Home   Referenzen   Kontakt   Impressum   Anfahrtsweg   AGB   Datenschutz    
Durchlaufwaschmaschinen

   1. Banddurchlaufwäscher für Metallteile
   2. Durchlaufwäscher für Zahnwellen
   3. Durchlaufwäscher für Gelenkbauteile
   4. Durchlaufwäscher für Radnabenbauteile nach        Gleitschleif-Entgraten
   5. Durchlaufwäscher für Radnabenbauteile nach        dem Räumen
   6. Durchlaufwäscher für Gelenkgehäuse der        mechanischen Bearbeitung
   7. Durchlaufwäscher für Gelenkwellenrohre
   8. Durchlaufwäscher für Gelenkwellenrohre vor        dem Lackieren
   9. Takt-Durchlaufwäscher für Metallteile
 10. Durchlaufwäscher für Rahmenlängsträger von        LKW
 11. Durchlaufwaschanlage für Carrier


Kabinenwaschmaschinen

   1. Kabinenwaschanlage für Metallteile
   2. Kabinenwaschanlage für Kugellagerteile
   3. Kabinenwaschanlage für Metallteile in Körben
   4. Kabinenwaschanlage Kleinteile in Körben
   5. Kabinenwaschanlage für Schwenklager


Tauchwaschmaschinen

   1. Tauchwaschmaschinen für Metallteile


Behälterwaschmaschinen

   1. Behälterwaschanlagen für Edelstahlcontainer        mit Rundverkettung
   2. Behälterwaschanlage für Edelstahlcontainer
   3. Behälterwaschanlage für Edelstahlcontainer mit        Rundverkettung im Ex-Bereich


Kleinteilewäscher

   1. Kleinteilewäscher


Endgratanlagen

   1. Kabinen - Wasch-Endgratanlage für AGW-       Module
   2. Takt – Durchlauf- Wasch-Endgratanlage für        Ölpumpengehäuse
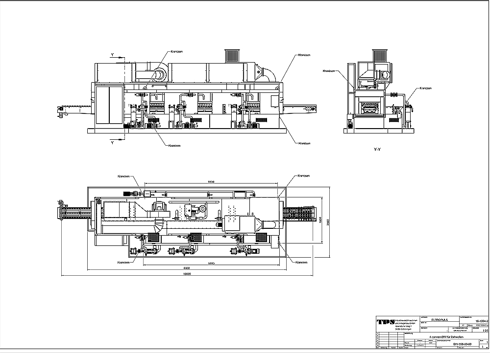
4-Zonen - Takt -Durchlaufwäscher für Zahnwellen vor dem Beschichten

Takt - Durchlaufwäscher - Rahmenlängsträger
Spezifikation:


Reinigungsgut:
Verschmutzung:
Bauteilgröße:

Chargengewicht:
Durchsatz:
Taktzeit:
Transport:
Reinigungsmedien:
Reinigungsverfahren:

Badpflege:
Sonderausstattung:
Beheizung:
Aufstellfläche:



Zahnwellen vor dem Plasmanitrieren
Kühlschmierstoff, Späne, Transportschmutz
Ø 20 - 40 mm
Länge 220 - 600 mm
1,85 Kg / Stück
330 Gelenkwellen/h
10,6 sec. / Teil
Kettenförderer mit Prismen-Aufnahmen
Wässrige Reiniger, VE-Wasser
Spritzwaschen, Spritzspülen 1, Spritzspülen 2, Spritzspülen 3, Zuluft-Trocknung, Umlufttrocknung
Rücklauffilter, Vollstromfiltration, Ölabscheider
Automatische Eigenreinigung, Abpumpeinheit
Elektrisch
L x B x H = 11.000 x 3.000 x 3.500 mm